热线电话:4009966791
您现在的位置是:网站首页 > 产品展示
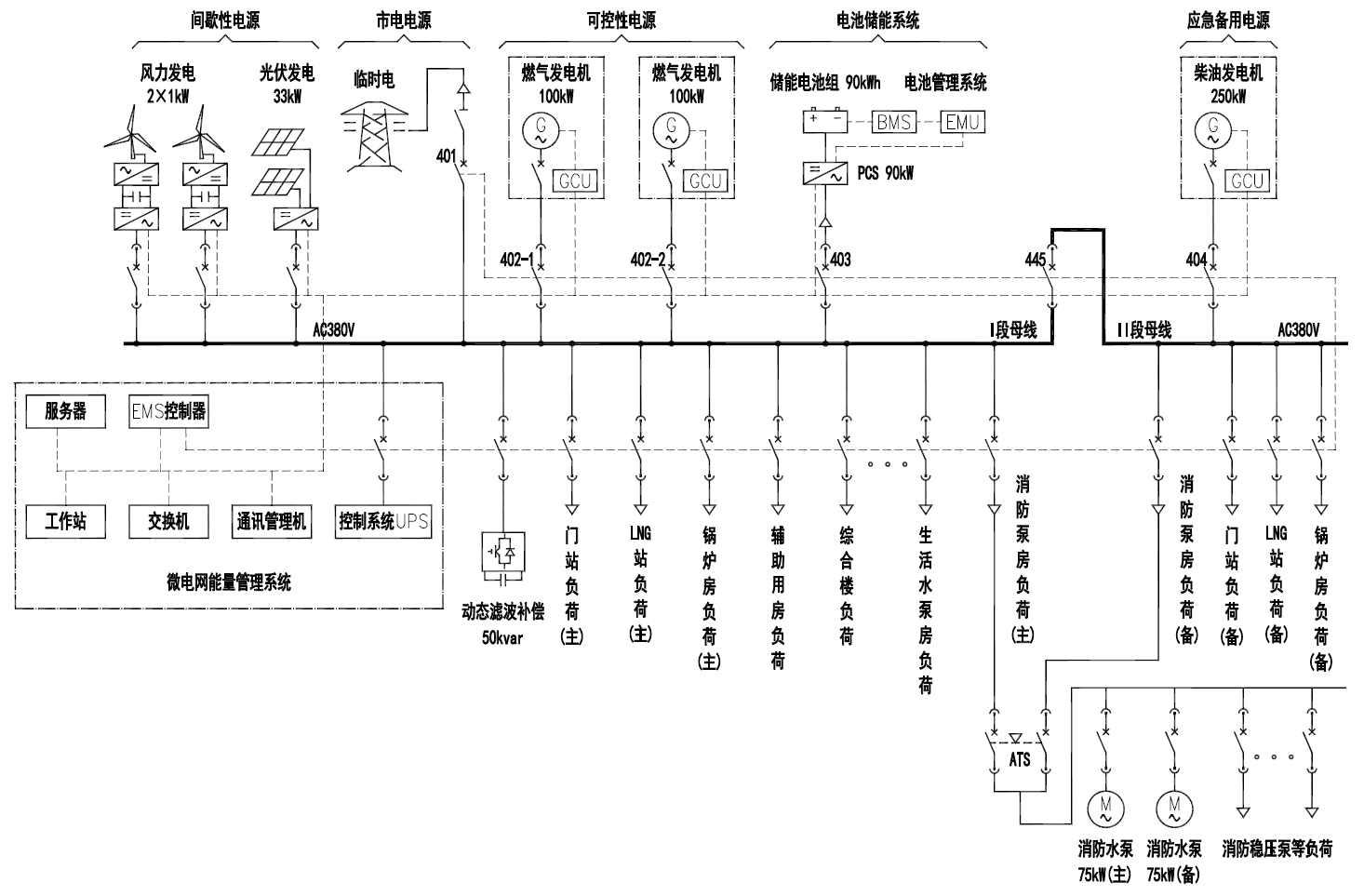
智能微电网系统